Healthcare
Yale New Haven Health, Regional Operations Center

Yale New Haven Health

Regional Operations Center

the story

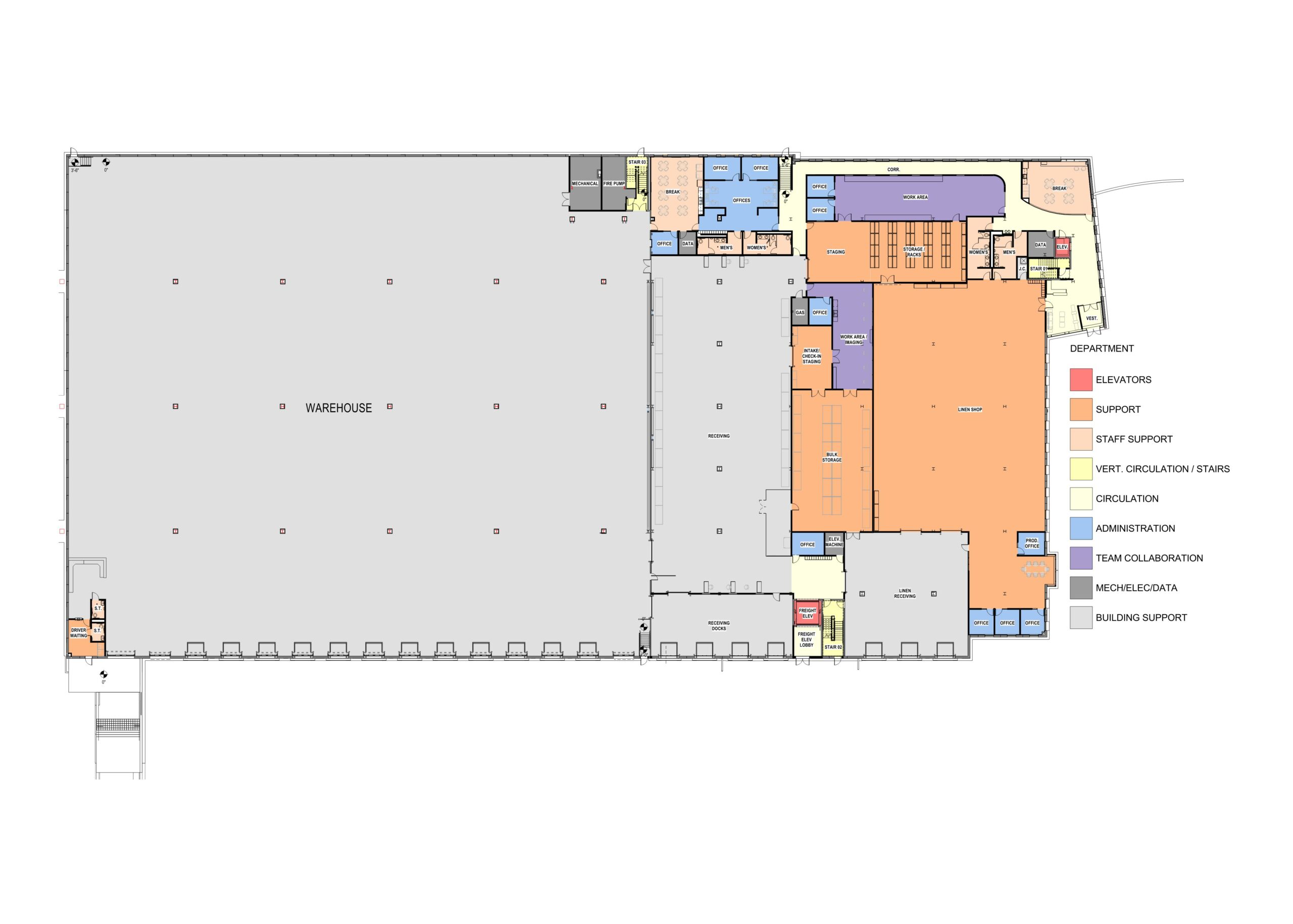
Yale New Haven Health (YNHH) selected SLAM to design a new Regional Operations Center (ROC) to serve the system at-large with a warehouse and distribution center featuring a compounding pharmacy, central sterile supply, medical devices, personal protective equipment (PPE) and other technology. SLAM was involved with the overall selection of the property thru multiple site studies.   After the property purchase, SLAM’s team developed a masterplan for possible buildable areas for this 100-acre campus. The “ROC” as it is frequently referred to, was the first development on this site.

[logo] at-a-glance

TYPE:
New Construction
SERVICES:
Architecture
Interior Design
Landscape Architecture
Programming & Planning
Structural Engineering
LOCATION:
West Haven, CT
STATUS:
Completed in 2020
SIZE:
140,000 SF
Impact

Not only does the ROC serve as the key warehouse for supplies, it brings together a number of clinical support services, including clinical engineering, linen operations, information technology services, and a centralized compounding pharmacy under one roof. This will allow YNHHS to easily receive and distribute resources to its five hospitals and numerous outpatient facilities.

“

By centralizing supplies and services, we’ve been able to create a crucial hub that helps our health system operate more efficiently.

Christopher O’Connor
YNHHS President
”

The Home Infusion Center is located at the ROC and with a total area of 8,475 square feet, it’s the largest of its kind in Connecticut. Eligible patients across Connecticut will be able to receive infusion treatments at home for conditions that until now may have required a hospital or infusion clinic visit.

Project Contacts

Paul Baldinger AIA
PROJECT DESIGNER

P
860 368.4265